Maison 5 pièces à Concarneau

Maison 5 pièces - 320 M² - 455 000 €

Venez découvrir les Villas Dolmen, un programme de maisons neuves idéalement situé, à proximité du centre-ville.

Implantée dans un cadre résidentiel recherché, cette maison individuelle a été conçue pour offrir confort, fonctionnalité et qualité de vie.
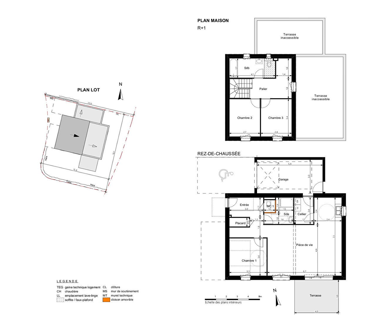
Elle se compose, au rez-de-chaussée,
d’une entrée avec placard, d’une belle pièce de vie lumineuse avec cuisine ouverte donnant directement accès à la terrasse et au jardin, d’un cellier, d’une chambre, d’une salle d’eau ainsi qu’un WC indépendants, permettant une véritable vie de plain-pied.

A l’étage, un palier dessert deux chambres supplémentaires ainsi qu’une salle de bains avec WC.

A l’extérieur, vous profitez d’un jardin privatif, d’une terrasse bien exposée et d’un garage, le tout sur une parcelle agréable.

Situées sur les hauteurs du centre-ville, ce bien bénéficie d’un emplacement privilégié, permettant de rejoindre facilement les plages, les commerces et l’ensemble des commodités.

Construites selon les normes RE 2020, elle offre d’excellentes performances énergétiques, synonymes de confort au quotidien et d’économies durables.

Ce programme neuf bénéficie également de toutes les garanties constructeur, dont la garantie décennale et l’assurance dommages – ouvrage, ainsi que de frais de notaire réduits.

Les atouts principaux :

Emplacement recherché

Accès à pied au centre-ville

Maison neuve avec prestations de qualité

Vie de plain-pied

Distribution moderne et optimisée

Belle luminosité

Terrasse, jardin et garage

Excellente performance énergétique (RE 2020)

Garanties constructeur incluses

Frais de notaire réduits

Un bien idéal pour profiter d’un cadre de vie agréable, entre confort moderne et proximité du littoral.

Anthony Charlot (EI) Agent Commercial – Numéro RSAC : – .

Consomation énergétique

Aucune donnée sur la consommation énergétique

Général

  • Référence : 7379
  • Type de transaction : Vente
  • Type de bien : Maison

Localisation

  • Ville : CONCARNEAU
  • Code postal : 29900

Montant

  • Prix : 455 000 €
  • Prix (hors honoraires) : 455 000 €

Surface / Étages

  • Surface totale : 320 m²
  • Surface habitable : 103 m²
  • Nb. d'étages : 1

Pièces

  • Pièces : 5
  • Chambres : 3

© 2026 Votre Achat Immobilier

Conception Selltim